For Sale

$390,000

Lot 22 - 6 Bay Breeze , Marie, Prince Edward Island C0A1S0

3 Beds 2 Baths

Remarks

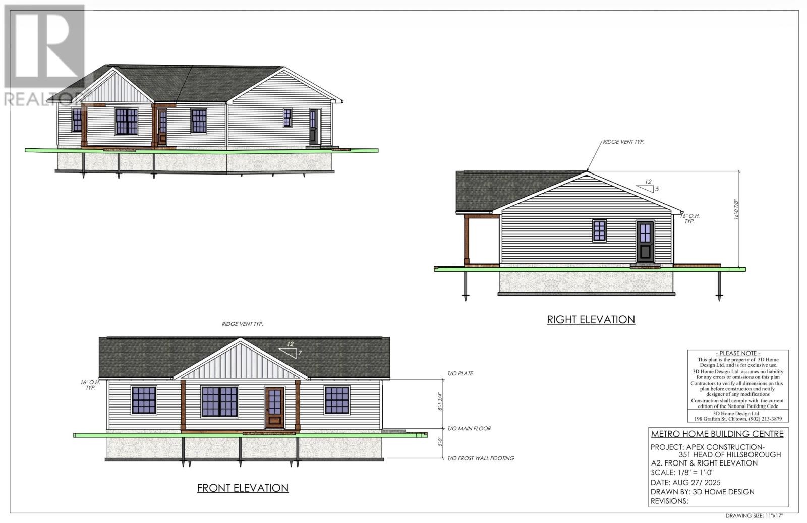
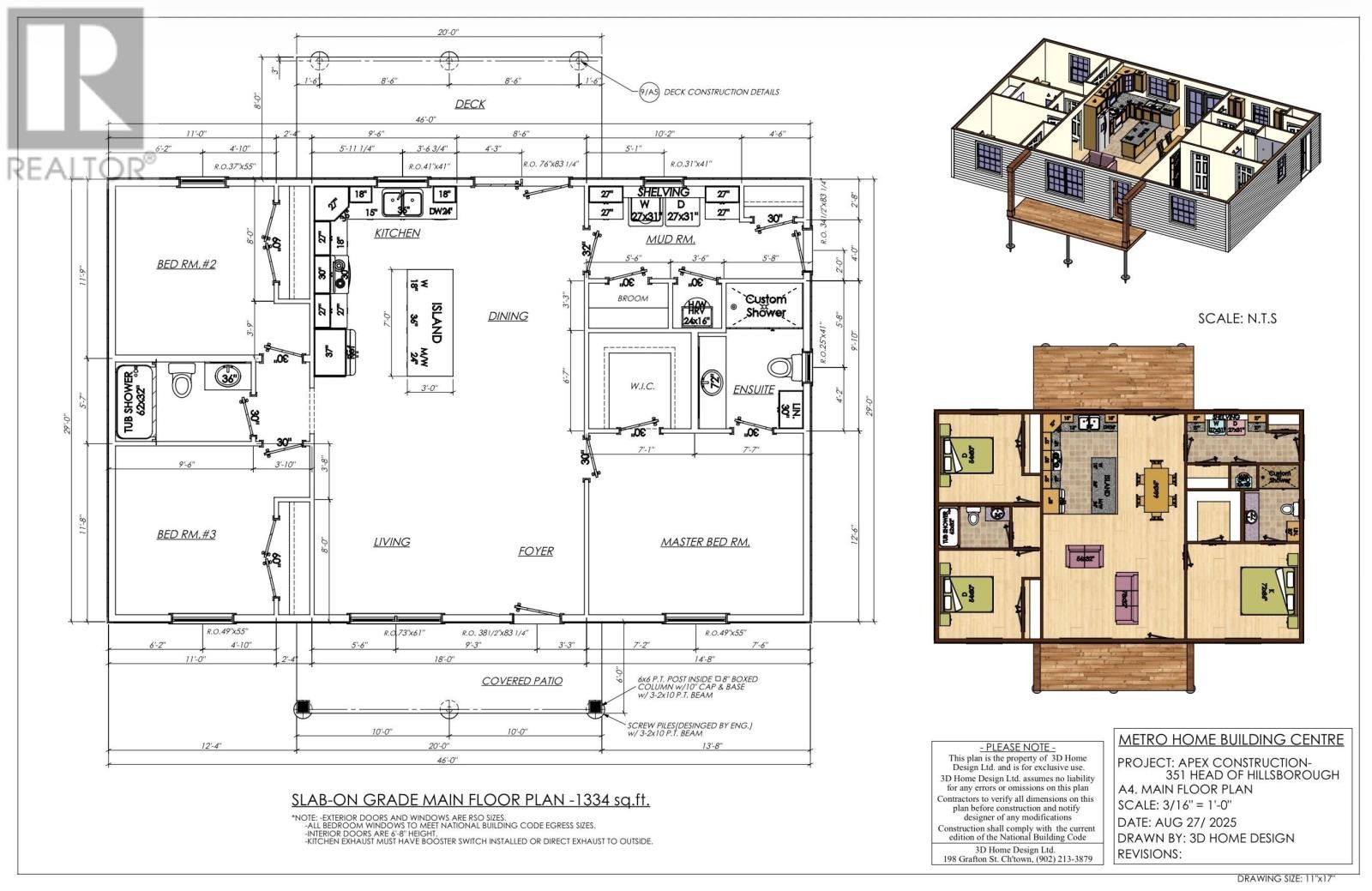
*To-Be-Built?This to-be-constructed 1,334 sq ft, 3-bedroom, 2-bathroom home is a rare chance to customize everything before a single shovel hits the ground. On a spacious 1.10-acre lot with gorgeous views over St. Peter?s Bay. Because construction has not yet begun, you?ll work hand-in-hand with the builder/contractor (essentially having your own dedicated contractor at your disposal) to choose finishes, flooring, cabinetry, fixtures, paint colours, appliances, etc. Featuring a bright open-concept design, modern styling, and energy-efficient construction, this home is perfect for families, retirees, or anyone seeking a personalized coastal retreat. Every detail will be brand new and backed by the full 10-year Atlantic New Home Warranty for total peace of mind. All while remaining within easy reach of St. Peter?s, Morell, and Charlottetown (just 35-40 minutes away). ?Secure this prime view lot now and construction can begin as soon as you?re ready! * The Seller is also a Realtor. (id:7526)

Property Summary

  • Neighbourhood: Marie
  • Total Finished Area: 1334 sqft
  • Acreage: Yes
  • Bedrooms: 3
  • Bathrooms (Total): 2

Property Features:

  • Ownership Type:
    Freehold
  • Property Type:
    Single Family
  • Sewer:
    No sewage system
  • View Type:
    View of water

Building Features:

  • Appliances:
    None
  • Basement Type:
    None
  • Building Type:
    House
  • Construction Style - Attachment:
    Detached
  • Exterior Finish:
    Vinyl
  • Flooring Type :
    Vinyl
  • Foundation Type:
    Concrete Slab
  • Heating Type:
    Baseboard heaters , []

Rooms

  • Kitchen:
    Level: Main 17’ 8” x 13’ 2”
  • Great Room:
    Level: Main 17’ 8” x 15’ 10”
  • Bathroom:
    Level: Main 8’ x 9’ 10”
  • Bathroom:
    Level: Main 5’ x 7’
  • Master Bedroom:
    Level: Main 14’ x 12’ 6”
  • Bedroom:
    Level: Main 12’ x 11’ 9”
  • Bedroom:
    Level: Main 12’ x 11’ 9”
  • Laundry:
    Level: Main 14’ x 6’ 8”

Listing courtesy of: 

NORTHERN LIGHTS REALTY LTD.

Lifestyle
Neighbourhood Info

Get More Info

Book a tour